DYNAPAC EPC Spare Part and Service Manuals
каталог запчастей и ремонт обслуживание DYNAPAC
DYNAPAC - Каталог запчастей Dynapac (Динапак), руководство по ремонту и эксплуатации, представлены катки, асфальтоукладчики, дорожные фрезы, виброплиты
и другая укладочная техника Dynapac Atlas Copco Group.
DYNAPAC все документы устанавливаются на ваш компьютер, благодаря чему вы можете автономно без проблем
пользоваться документами в любое время для подбора запчастей, ремонта и обслуживания техники DYNAPAC.
В каталоге DYNAPAC EPC Spare Part and Service Manuals представлена следующая техника;
Катки
Асфальтоукладчики
Мобильные питатели
Дорожные фрезы
Виброплиты
Трамбовки
Глубинные вибраторы и приводные устройства
Затирочные машины
Виброрейки
Машины для резки и шлифовки
Вакуумная обработка бетона
Наружные вибраторы
Дренажные насосы
Models List:
Diagnostic Software
Family CA
Family CC
Family CP
Introductions
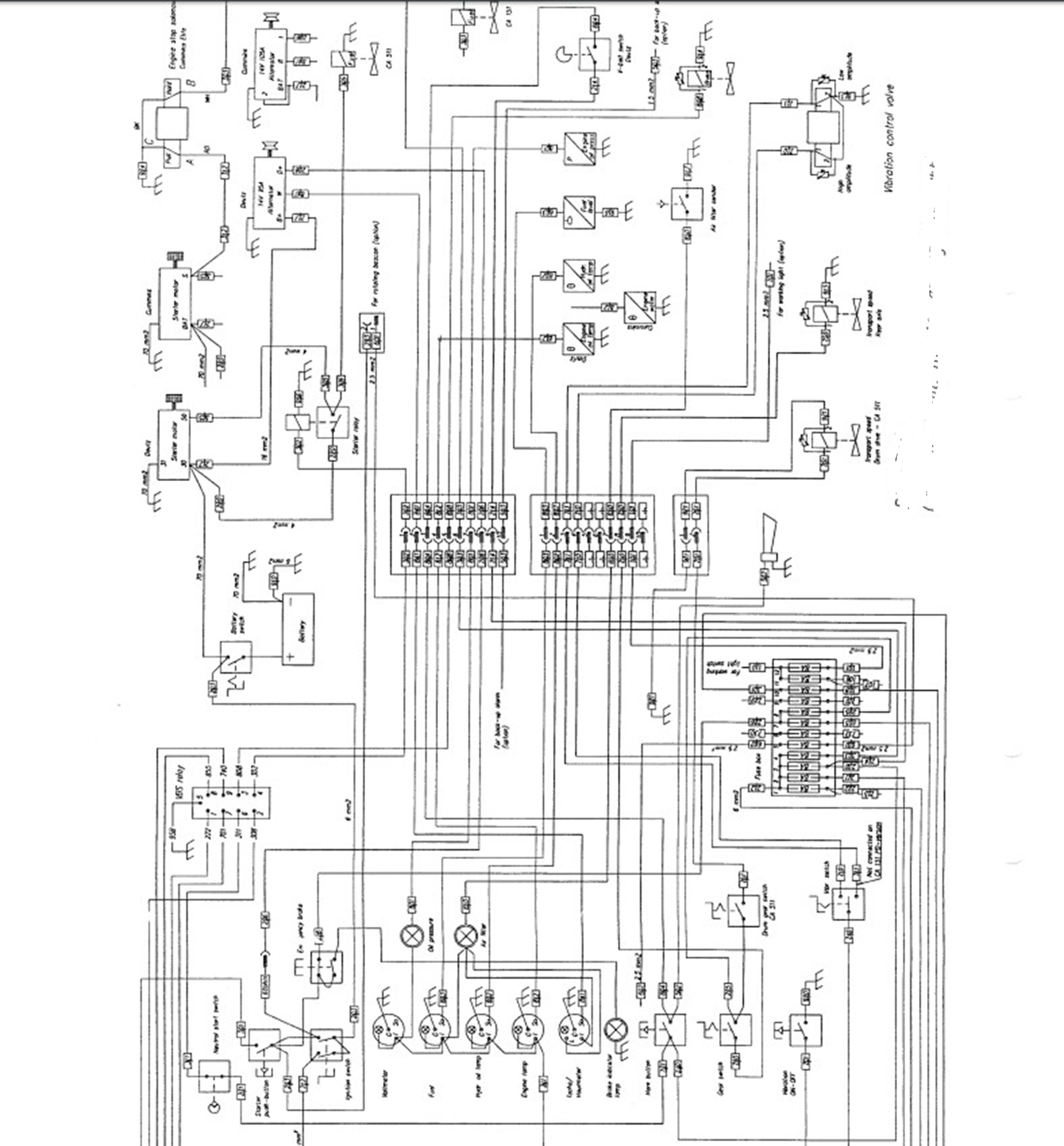
Каталог DYNAPAC MANUAL незаменим для владельцев техники DYNAPAC, которая оснащена электроникой, так как содержит подробные и четкие инструкции по обслуживанию
и помогает пользователю своевременно и качественно обслуживать, ремонтировать, собирать и разбирать технику DYNAPAC. DYNAPAC EPC Spare Part and Service Manuals - это ваш профессиональный помощник в эксплуатации и ремонте техники DYNAPAC, который позволяет вам улудшать качество работ и устранять неисправности.
Пример работы с DYNAPAC EPC Spare Part and Service Manuals;
Интерфейс DYNAPAC EPC Spare Part and Service Manuals является очень простым и удобным для работы.
DYNAPAC EPC Spare Part and Service Manuals представлена следующая техника;