Электронные каталоги автозапчастей
и программы по диагностике, ремонту,
обслуживанию иномарок

8 (926) 600-50-99




Каталоги для СПЕЦТЕХНИКИ, трактора, погрузчики, экскаваторы и т.п
8 (926) 600-50-99

HINO Series 300, 500, 700 Euro 3 и 4 Workshop Manuals (электросхемы)
руководство по ремонту HINO грузовиков HINO


Hino EPC


Каталог по ремонту HINO
и техническому обслуживание грузовиков HINO Euro 3 и Euro 4.
В данном руководстве по ремонту HINO так-же есть информация
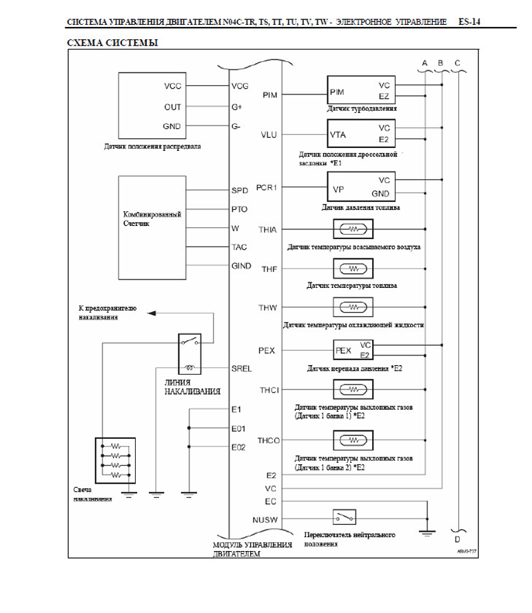
по электрообрудованию для грузовиков HINO Series 300, 500, 700

В каталоге HINO Series 300, 500, 700 Euro 3 и Euro 4 Workshop Manuals
применимо для FR1Ef, FS1E, FY1E, SH1E, SS1E и ZS1E

В руководстве по ремонту HINO HINO Series 300, 500, 700 Euro 3 и Euro 4 Workshop Manuals для серий XZU600, XZU700, WU600, WU700, WU300, 302, 340, 410, 412, 420, 422, XZU303, 306, 307, 343, 347, 405, 407, 413, 415, 417, 423, 425, 427, 435, 437
Руководство S1-YXZE16D, W04D-J S5-YW04E06B


В руководстве по ремонту HINO есть разделы обслуживание осмотр, регулировка, устранение неисправностей,
снятие и установка, электрика.
В каталоге по ремонту HINO обратитесь к руководству по ремонту для соответствующей модели.
В этом руководстве по ремонту HINO содержатся ремонтные процедуры для серии автомобилей HINO 300, 500, 700
применимые модели: XZU423 и для России.
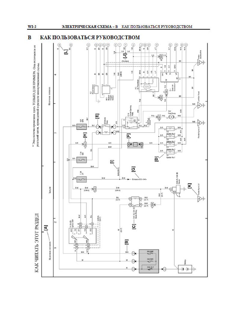
В руководстве по ремонту HINO делится на разделы с буквенными указателями каждого раздела по краям страниц.
В каталоге по ремонту HINO обратите ваше внимание на то, что публикации, приводимые ниже, готовились, как соответствующие руководства по техническому обслуживанию узлов и систем этого автомобиля HINO.



В руководстве по ремонту HINO содержится информация:
S1-LXZE05A
S1-LXZE05A EWD (электросхемы)
S1-YXZE17А
S1-YXZE16D EWD (электросхемы)
S1-YXZE09B
S1-HFSE01B

Содержится информация для двигателей
N04C S5-LN04E07A, W04D S5-LW04E04A, N04C S5-LN04E07A, FS1E-E13CTI, Е13С S5-YE13E02F, S5-MJ08E0IB
о неисправностях S7-LXZE05A
Содержится так-же информация для механической коробки передач: M550


ТАК-ЖЕ СМОТРИТЕ СКРИНШОТЫ ОГЛАВЛЕНИЙ
HINO Series 300, 500, 700 Euro 3 и Euro 4 Workshop Manuals




руководство по ремонту HINO руководство по ремонту HINOруководство по ремонту HINO



ремонт hinoремонт hinoремонт hinoремонт hino


ремонт HINO руководство по ремонту HINOремонт HINO ремонт hinoремонт HINO



ремонт HINOремонт HINOремонт HINOремонт HINO



ремонт HINOремонт HINOремонт HINOремонт HINO



ремонт HINOремонт HINOремонт HINOремонт HINO




ремонт HINOремонт HINOремонт HINOремонт HINO




ремонт HINOремонт HINOремонт HINOремонт HINO



ремонт HINOремонт HINO



Пример работы с руководством по ремонту Hino Workshop Manual ;


ремонт HINOруководство по ремонту HINOремонт HINOруководство по ремонту HINO



ремонт HINOремонт HINOремонт HINOруководство по ремонту HINO



Язык: Русский, Английский

Операционная система: Windows-XP,7,8,10 (32-64bit)

Формат каталога: PDF

Объем: 2 gb (скачивание с сервера)

HINO Series 300, 500, 700 Workshop Manual руководство по ремонту HINO, электросхемы - 9000 руб (комплект)

HINO Series 300 Workshop Manual
руководство по ремонту, электросхемы - 3500 руб
HINO Series 500 Workshop Manual руководство по ремонту, электросхемы - 3500 руб
HINO Series 700 Workshop Manual руководство по ремонту, электросхемы - 3500 руб

HINO P11C Engine Workshop Manual
руководство по ремонту только мотор - 3000 руб


Hino каталогHINO EPC- каталог для определения оригинального номера запчасти
по вин коду автомобиля HINO


Delphi Diesel EPC v5.0
Delphi Diesel EPC v5.0
- каталог запасных частей ТНВД DELPHI




Узнайте подробности по телефону: 8 (926) 600-50-99

Наш e-mail: catalog-good@yandex.ru

На главную.